Apartamento Reformado en El Cabanyal, Valencia
Valencia (Poblats Maritims) - REF. 1027

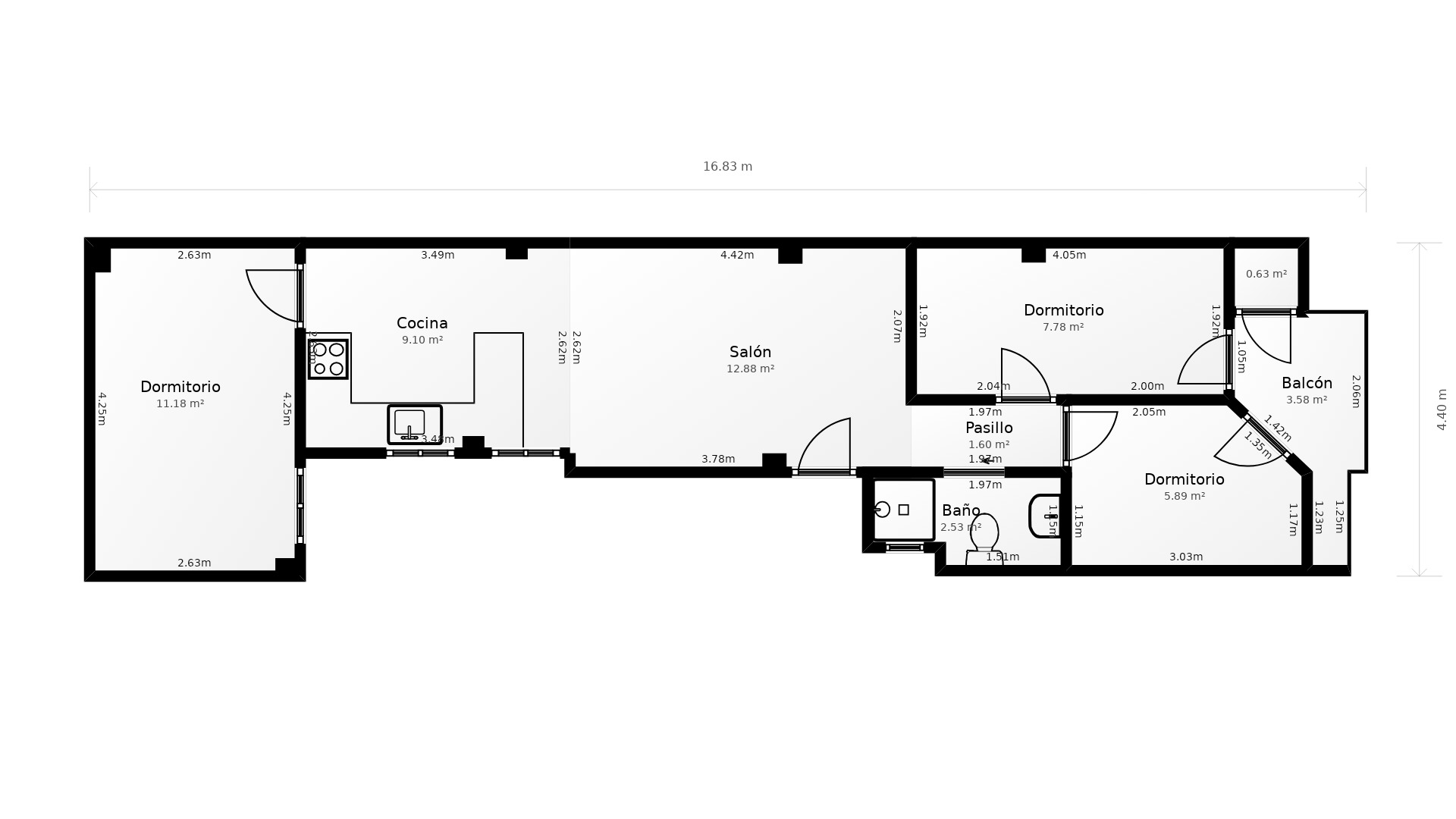
67 m2

3

1

3
alquiler: 1.600 €/mes
Descripción

Un nuevo comienzo en el barrio con más alma de Valencia.


Imagina despertar cada mañana con la brisa del mar, el sol acariciando tu terraza y la energía de un barrio lleno de vida que invita a disfrutar cada momento. Así se vive en El Cabanyal, y así te sentirás en este apartamento totalmente reformado y decorado a estrenar (julio 2025).


Perfecto para parejas que quieren vivir con estilo o estudiantes que buscan compartir una vivienda nueva, moderna y práctica, este piso lo tiene todo para ofrecerte confort, estética y una calidad de vida superior.


Diseño moderno. Comodidad real. Tecnología integrada.


Desde el primer paso, el espacio transmite armonía. El salón-comedor es amplio, luminoso y está climatizado con aire acondicionado, ideal para relajarte o recibir amigos. La cocina americana, abierta y totalmente equipada con electrodomésticos nuevos, permite cocinar, charlar y compartir sin barreras.


Cuenta con tres habitaciones bien distribuidas:


El dormitorio principal, con cama doble con arcón, armarios amplios y ventilador de techo para un descanso fresco y tranquilo.


Dos dormitorios individuales, con camas de 90 cm y ventiladores de techo, ideales para compañeros de piso, despacho o habitación de invitados. Ambos tienen acceso directo a una terraza privada equipada como zona de relax con sillas y luz natural.


El baño moderno con ducha combina funcionalidad y diseño, con acabados actuales y todo lo que necesitas para tu rutina diaria.


Y para que puedas conectarte desde el primer día, dispondrás de WiFi instalado. Estudiar, teletrabajar o ver tus series favoritas no será un problema.


Seguridad, comodidad y tranquilidad


Tu bienestar es lo primero. Por eso, la vivienda está equipada con un sistema de alarma y una cerradura inteligente, que te permite entrar y salir sin llaves y controlar el acceso fácilmente. Ideal si compartes piso, alquilas por temporadas o simplemente buscas seguridad sin complicaciones.


Terrazas que amplían tu mundo


La vivienda ofrece no solo confort interior, sino también dos espacios exteriores para disfrutar:


Una terraza privada, perfecta para desayunos al sol, ratos de lectura o una copa al atardecer.


Una terraza comunitaria en la azotea con vistas abiertas, ideal para desconectar, tomar el sol o reunirte con amigos.


Una ubicación que eleva tu estilo de vida


Situado en el corazón de El Cabanyal, tendrás a tu alcance:


La playa de La Malvarrosa a 5 minutos caminando: desconexión garantizada.


Universidades UV y UPV a 5 minutos a pie: perfecta para estudiantes.


Estación de tranvía La Cadena a 1 minuto: conexión rápida con el centro y toda Valencia.


Además, vivirás rodeado de restaurantes, cafeterías, panaderías, supermercados, gimnasios, centros culturales y el mítico Mercado del Cabanyal. Es un barrio con alma, que mezcla tradición, juventud y un presente vibrante lleno de oportunidades.


Condiciones


Para alquilar esta vivienda, se requerirá un seguro de impago, por lo que será necesario demostrar ingresos estables.


Características
Precio Alquiler 1.600 €/mes
Año de construcción 165
Construidos 67 m2
Dormitorios 3
Baños 1
Amueblado
Cocina Amueblada
Calefacción Split electrico
Trastero
Terraza
Altura/Planta 3
Estado Reforma a Estrenar
Tipo de suelo Parquet
Aire acondicionado
Calificación Energética (E) VER
Luz
Gas
Agua

Visita Virtual

Escalas de eficiencia


Eficiencia Emisiones: 25,00
Eficiencia Consumo: 134,00
134
25

Tu agente
Juan Ramón
Contáctanos

Si deseas más información sobre esta propiedad, por favor, rellena el formulario.

 Sí, he leído y/o acepto las Condiciones de uso y la Política de privacidad
Inmuebles similares:
 
1.325 €/mes
Ref. 1028  67 m2  3  1

Estrena vida en El Cabanyal. Apartamento reformado JULIO 2025, de diseño y tecnología integrada (alarma/WiFi). 3 hab., salón-cocina abierta y dos terrazas (una privada, otra comunitaria con vistas). A 5 min. de la playa y las universidades. ¡El lujo de vivir junto al mar en el barrio de moda!

 
1.300 €/mes
Ref. 1006  118 m2  4  1
Piso en alquiler con 118 m2, 4 habitaciones Trastero, Ascensor, Amueblado, Aire acondicionado y Calefacción Radiadores caldera de gas.